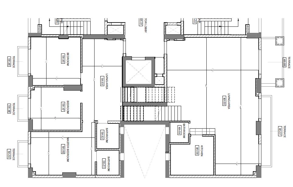
دوبلكس نموذج فايس فيرسا 266 متر تشمل باكية جراج بمشروع صواري السعودية المصرية
دوبلكس نموذج فايس فيرسا 266 متر تشمل باكية جراج بمشروع صواري السعودية المصرية
دوبلكس نموذج فايس فيرسا 266 متر تشمل باكية جراج بمشروع صواري السعودية المصرية
https://maps.app.goo.gl/yX2zTV1frqGutKHj9

Quick Summary
- Address: دوبلكس نموذج فايس فيرسا 266 متر تشمل باكية جراج بمشروع صواري السعودية المصرية
- Type : دوبلكس
- Status : بيع
- Area 266 M 2
- Rooms 3
- Beds : 5
- Baths : 3
- Garden Area : M 2
- Roof Area : M 2
- Terrace Area : M 2
- Floor : 5
- Advance payment : 12,000,000 EGP
- Remaining payment : 2,538,120 EGP
- Price : 14,538,120 EGP